Reimagining Education through Contextual Architecture
The Aga Khan Academy in Dhaka, Bangladesh, designed in collaboration between SHATOTTO architecture for green living and UK-based Feilden Clegg Bradley Studios (FCBS), stands as a monumental example of sustainable school architecture in Dhaka. Rooted in local heritage yet innovatively modern, this project presents a bold architectural vision that blends environmental consciousness with the cultural and educational needs of a rapidly urbanizing city.

The design draws from the architectural philosophy of ancient Buddhist Mahaviharas, adapting their emphasis on spatial harmony, introspection, and natural interaction into a 21st-century academic environment. Set on a vast 74,150 square meter plot beside one of Dhaka’s busy roads, the Academy offers a serene refuge within the city’s dense urban fabric.


The campus is planned as a green lung—a self-sustaining ecosystem of courtyards, open spaces, and shaded pathways. Carefully composed with exposed brick, the architecture is highly responsive to Dhaka’s tropical climate. The layout allows cooling summer winds to circulate while welcoming the soft winter sun. The use of brickwork not only pays homage to local building traditions but also enhances thermal performance and durability.




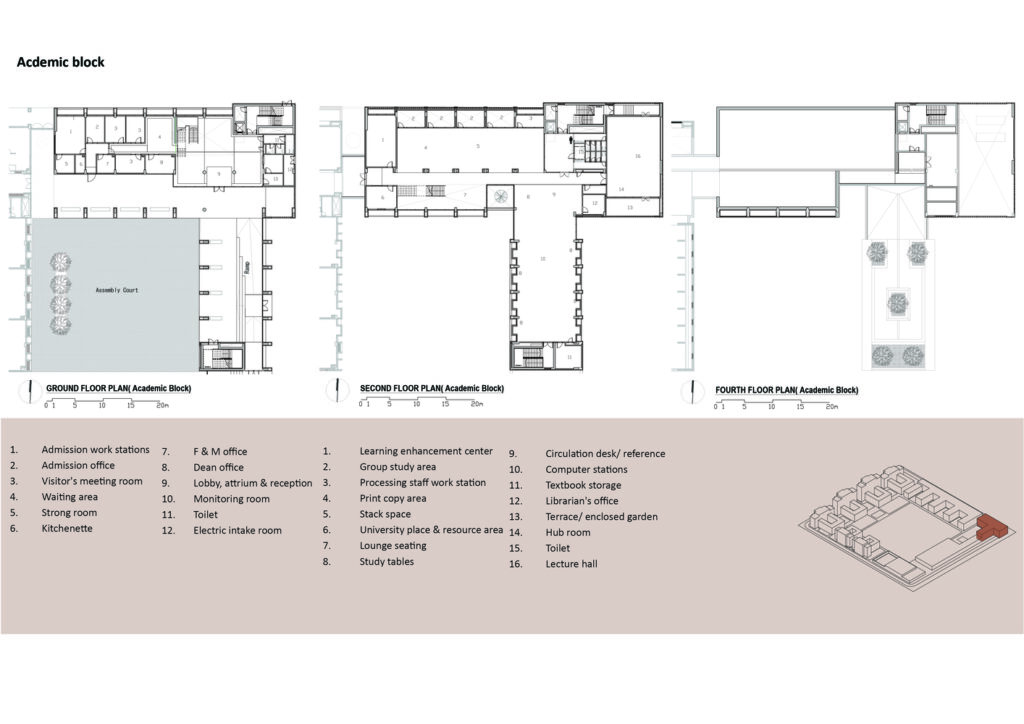
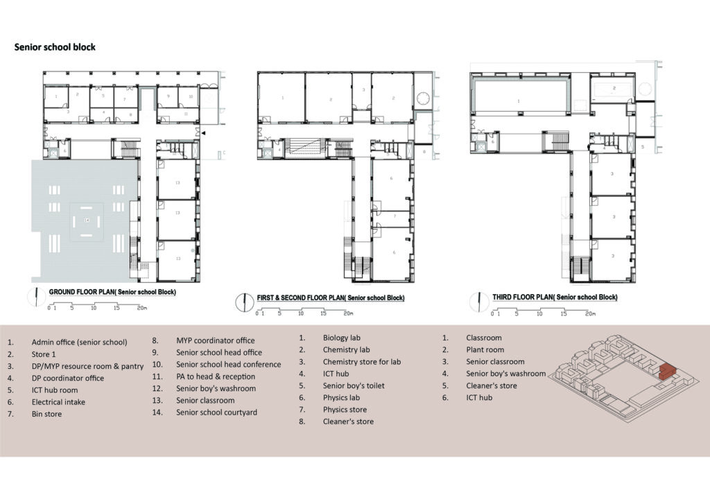
At the core of the campus lies the Maidan, a large central green inspired by historical courtyards in Buddhist monastic architecture. It functions not just as a gathering space but as a spiritual and visual anchor, promoting contemplation and community. Surrounding it are various academic buildings that frame smaller, age-specific courtyards designed with precise climatic and social intent.

Each courtyard supports different learning modes based on student age groups. The senior courtyard, shaded by planted trees, fosters informal group gatherings. In contrast, the assembly courtyard near the academic block is intentionally open, defined only by four Dhaak trees—an homage to Dhaka’s botanical origins. These spaces promote a didactic approach to learning, where children observe and interact with nature directly.

Sustainability at the Aga Khan Academy goes beyond material choices. The site integrates landscape and architecture to reinforce environmental awareness among students. A sand pit within the amphitheater transforms into a temporary pond during monsoon rains, encouraging children to celebrate the seasonal rhythm of water. Such spatial narratives encourage playful, immersive learning and deepen respect for natural processes.

Despite its ancient inspirations, the academy is equipped with state-of-the-art infrastructure. Passive cooling techniques, open ventilation corridors, and strategic shading are integrated seamlessly into the architecture. The collaboration between SHATOTTO and FCBS ensured that global design standards were met while deeply rooting the project in local culture and construction techniques.

The Aga Khan Academy is not just a school; it is an architectural statement about how education, culture, and sustainability can intersect meaningfully. By balancing historical reverence with modern needs, it sets a precedent for sustainable school architecture in Dhaka and beyond. It invites architects, educators, and urban planners to reconsider the future of academic environments—places that nurture not only knowledge but also environmental stewardship and cultural identity.










