Mariam Issoufou Architects and studio chahar
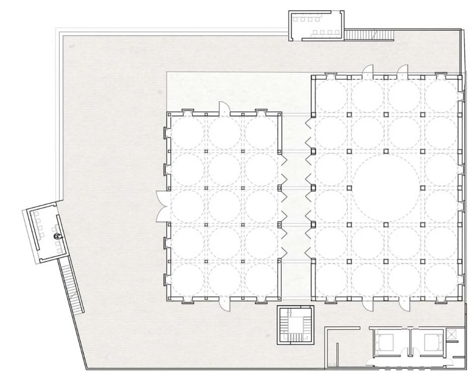
Hikma Community Complex is located in Dandaji, a Hausa village in arid western Niger. Dandaji has a very young population of 3000, low literacy rates, and high economic vulnerability. The local middle school serves children from five surrounding villages. The project is an adaptive-reuse and new construction combination, with an existing mosque renovated and readapted as a library, with study study spaces, additional classrooms, workshop areas in the landscape, completed by a larger new mosque building that better serves the growing village.

To renovate the old building to its previous glory, the original masons were invited to join the project team. In the process, they learned about adobe-enhancing additives and erosion protection techniques. Instead of the region’s traditional but scarce wood, the interior renovation used metal for study spaces, partitions, stairs and a mezzanine level, as a contemporary touch to a traditional space. The new building in turn re-interprets traditional Hausa mosque organization with contemporary structural support and detailing.


Most of the project materials are sourced from less than a 5km radius to the site, while the use of concrete is limited to structural elements such as columns and lintels. The project introduced Compressed Earth Bricks (CEB) made with laterite soil found on site, a new material in the area with the advantage of being lower maintenance than adobe, with similar thermal benefits. The thermal mass of the CEBs and natural ventilation keep indoor temperatures comfortable and remove the need for mechanical cooling.


In the 9th century AD, Muslim scholars made remarkable contributions to the sciences and humanities in Bagdad’s Bayt al-Hikma, or House of Wisdom, a library and research center housing the world’s largest collection of books for scholars to engage both theological and scientific matters. Today’s religious climate could use such freedom to pursue knowledge alongside religious practice.

With the support of local leaders, women and youth, the Hikma project re-introduces these values embedded in Islam itself, by transforming a derelict mosque into a library that shares its site with a new mosque for the village of Dandaji in Niger. The project is a culture and education hub where the secular and religious peacefully coexist to cultivate minds and strengthen the community.

To renovate the old building to its previous glory, the original masons are invited to join the project’s team. In the process, they learn about adobe-enhancing additives and erosion protection techniques.

Instead of the region’s traditional but scarce wood, the interior renovation uses metal for study spaces, partitions, stairs and a mezzanine level, as a contemporary touch to a traditional space. The new building in turn re-interprets traditional Hausa mosque organization with contemporary structural support and detailing. Its two blocs and outdoor prayer space are suited to daily prayers, Friday assemblies, or large Eid celebrations. The dialog between the formal structures of the old and new leads to further collaboration between the traditional masons and the construction crew.

The project provides spaces for learning, reading, studying, workshop, play and worship. The outdoor spaces are set to be flexible enough to accommodate community events or simply lend itself to quiet contemplation. The cultural complex acts as a community hub for the region.



The programmed complex includes a 1000-person mosque including two main worship spaces, two ablution spaces and a Minaret, 2 bedroom lodgings for the Imam of the mosque, a library, classrooms, reading and studying spaces, a hands-on workshop area, children’s play area and a garden. The main construction material for the project is Compressed Earth Bricks (CEB) made from soil that is found near the site, which provides better thermal performance and lowers energy consumption. It also lowers the cost of construction.




Status: Completed May 2018
Location: Dandaji, Niger.


You want to submit a project or an article ? send us an email with the subject here : archimag22@gmail.com
